47坪の居抜き物件

  • 入口
    入口
  • 内観①
    内観①
  • 内観②
    内観②
  • 内観③
    内観③
  • 内観④
    内観④
  • 内観⑤
    内観⑤
  • トイレ①
    トイレ①
  • トイレ②
    トイレ②
  • トイレ③
    トイレ③
  • トイレ④
    トイレ④
  • トイレ⑤
    トイレ⑤
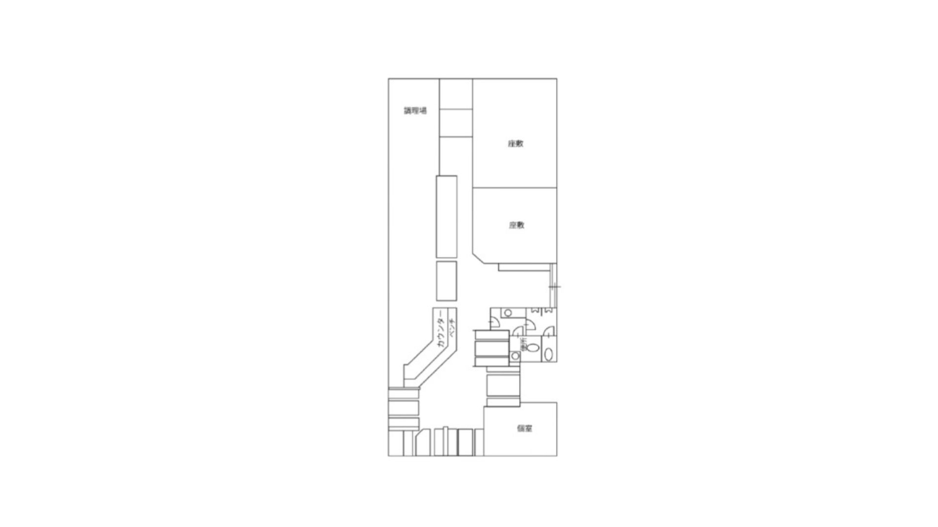
  • 間取図
    間取図
  • 入口のサムネイル画像
  • 内観①のサムネイル画像
  • 内観②のサムネイル画像
  • 内観③のサムネイル画像
  • 内観④のサムネイル画像
  • 内観⑤のサムネイル画像
  • トイレ①のサムネイル画像
  • トイレ②のサムネイル画像
  • トイレ③のサムネイル画像
  • トイレ④のサムネイル画像
  • トイレ⑤のサムネイル画像
  • 間取図のサムネイル画像
×

岩手盛岡

岩手県盛岡市⼤通2-6-11

賃料 敷/保/礼
42 万円 坪単価
8,768円
敷:3ヶ月
保:なし
礼:なし
管理費 共益費 面積
42,000円 47.9 坪 158.38 ㎡
賃料 42 万円 坪単価 8,768円
管理費
共益費 42,000円
面積 47.9 坪 158.38 ㎡
敷/保/礼 敷:3ヶ月 保:なし
礼:なし
賃料総額 46.2万円

更新日:2026/4/16

業種
物件番号:689

物件情報

物件名
⽇興産業ビル 2階
所在地
岩手県盛岡市⼤通2-6-11
階数 / 所在階
地上4階地下1階建 / 2階
使用面積
47.9 坪 (158.38 ㎡)
建物構造
RC(鉄筋コンクリート造)
エレベーター
あり
築年数
1962年(築64年)
交通・最寄り駅
東北新幹線 / 盛岡駅 徒歩13分
JR東北本線 / 盛岡駅 徒歩12分
出店可能業種
クラブ、スナック、バー

MAP

賃料・費用

賃料
42万円
坪単価
8,768円
管理費
共益費
42,000円
敷金
3ヶ月
保証金 / 償却
なし / ー
礼金
なし
その他一時金
更新料
契約期間
3年
維持費等
ゴミ処理代:4,950円/月
造作譲渡
権利金
保険等
保証会社加入

備考

  • 居酒屋居抜き 内装リフォーム要相談

ヨルモがあなたの物件探しを全力でサポートいたします!
お気軽にご相談ください

この記事をシェアする

リンクをコピーする
コピーしました!

同じエリアの物件

プラザバンベールビル B101

映画館通りの角地テナントビル

  • 岩手県
    盛岡
  • 広さ
    17.15坪
  • 賃料
    9.4325万円
  • 坪単価
    5,500
プラザバンベールビル B102

映画館通りの角地テナントビル

  • 岩手県
    盛岡
  • 広さ
    14.53坪
  • 賃料
    7.9915万円
  • 坪単価
    5,500
サンクイーンビル 401

居抜き!初期投資を抑えての出店に最適です

  • 岩手県
    盛岡
  • 広さ
    44.22坪
  • 賃料
    31.603万円
  • 坪単価
    7,147
CT33ビル 203

広さも50坪以上あり、大通のど真ん中で存在感もばっちりです!!

  • 岩手県
    盛岡
  • 広さ
    53.99坪
  • 賃料
    33万円
  • 坪単価
    6,112
サイトに掲載出来ない
非公開人気物件もご紹介
ご条件に合う物件を
お探しします
物件お探し
リクエスト
あなたの物件も
掲載しませんか?
物件掲載
リクエスト

ヨルモ 物件お問い合わせ

Tel.0120-31-5441 受付時間:xx:xx〜xx:xx 折り返し電話予約